Avancée des travaux en photos

début travaux.jpg
debut travaux1.jpg
IMG_0194.JPG
IMG_0196.JPG
IMG_0204.JPG
IMG_0206.JPG
IMG_0393.JPG
IMG_0394.JPG

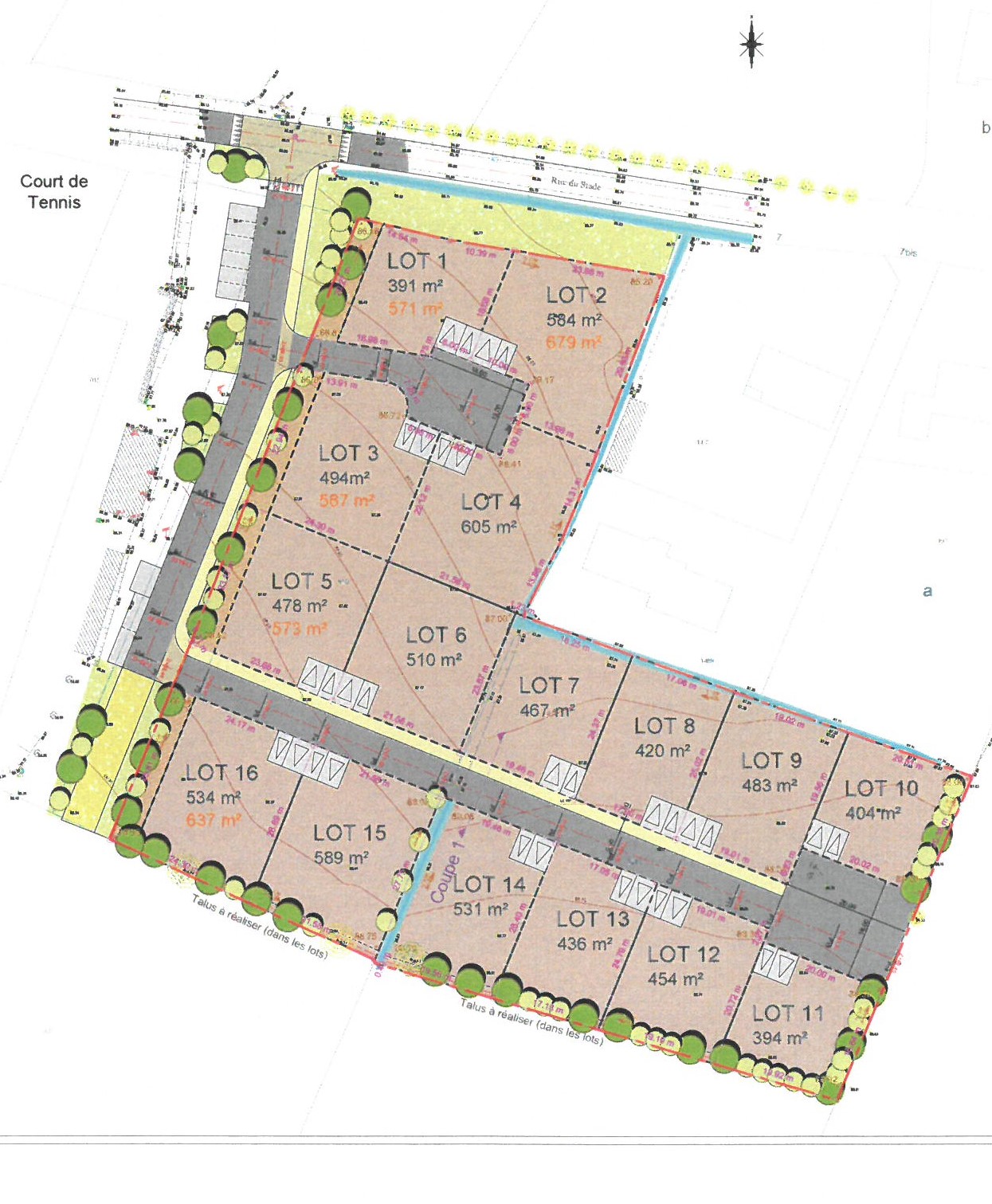
Un projet composé de 14 lots, d'une superficie variant de 391m2 à 605m2
Pour de plus amples renseignements, contactez la mairie au 02.40.33.72.30.

plan lotissement.jpg

Communiqué, Réouverture de la bibliothèque de la Remaudière

 
La bibliothèque de la Remaudière réouvre le mercredi 21 avril prochain. Elle intègre à présent le réseau des bibliothèques au côté de la Boissière-du-Doré, de la Regrippière, du Pallet, de la Chapelle-Heulin, de Mouzillon et de Vallet.
 
Une extension de l’offre culturelle

Le public de la Remaudière accède désormais au réseau des bibliothèques dont l’offre documentaire s’élève à plus de 40.000 références. Dorénavant, les collections de la Remaudière s’enrichissent d’une d’offre de DVD.
Les ressources numériques du département, à présent disponibles, permettent un accès à un large éventail d’offres comme des magazines en version numérique, de l’autoformation, des ressources au soutien scolaire.
Les bénévoles, organisés récemment en association, assureront aux côtés des professionnels les permanences du dimanche, lorsque les conditions sanitaires le permettront à nouveau. De même lorsque cela sera rendu possible, la bibliothèque accueillera des temps d’animation supplémentaires, en lien avec la programmation culturelle du réseau des bibliothèques.
 
Un apport de nouveaux services

Les lecteurs peuvent réserver leurs documents à partir du nouveau site internet (adresse ci-dessous) et les faire venir dans la bibliothèque de leur choix, en lien avec le tout nouveau logiciel métier.
Lors du retour des conditions d’ouvertures nécessaires, les horaires d’accueils seront étendus. En effet, l’équipe des professionnels du réseau de lecture assurera ces permanences supplémentaires.
Pour emprunter des documents, il est nécessaire d'être abonné.
L'abonnement est individuel. Tous les membres d'un même foyer peuvent faire la demande d'une carte. Le coût est de 15€ par an et par foyer.
Retrouvez les conditions d’inscription et les tarifs sur le site internet dans le menu « Infos pratiques », rubrique « Je veux m’inscrire ».
https://bibliotheques.cc-sevreloire.fr/

Un équipement culturel de proximité pour les Remaudièrois

Les locaux ont été remis à neuf et restructurés et sa surface a été étendue de plus de 30 m².
Ce nouvel espace fonctionnel et lumineux est dédié à la lecture mais également aux animations qui y seront proposées. Il est ainsi composé d’un accueil, d’un  espace lecture adulte et jeunesse, d’un espace contes et expositions, et d’un espace convivial, ainsi qu’une salle pour les professionnels de la lecture publique et les bénévoles.
Ce nouvel espace aura aussi pour vocation d’être un tiers-lieu sur notre commune pour développer les rencontres entre les habitants.
Les enfants de l’école Saint-Michel peuvent également profiter de la bibliothèque grâce à l’accueil des classes qui sera possible.
Ce nouvel équipement de près de 100 m², d’un coût de 173 270 € a été largement subventionné par l’Etat et la Communauté de Communes Sèvre & Loire. Ces travaux représentent un investissement pour la Commune de
46 881 €.
 

IMG_0309.JPG
IMG_0310.JPG
IMG_0312.JPG
IMG_0313.JPG
IMG_0314.JPG
IMG_0319.JPG
IMG_0315.JPG
IMG_0316.JPG

20200925_095546.jpg
20200925_095642.jpg
20200925_102419.jpg
IMG_0317.JPG
IMG_0359 _002_.JPG
IMG_0360 _002_.JPG